Logo Lipno infokanál

Načítání nemovitosti

Celkem 16 fotografií, zobrazit všechny

Prodej bytu 2+kk s balkonem, 54 m2, Hluboká nad Vltavou

Adresa:
Hluboká nad Vltavou 1
Cena:
1.602.150 ,-
Popis nemovitosti:

Nabízíme k prodeji bytovou jednotku číslo C-2–03 v prémiovém komunitním bydlení v projektu RESORT HLUBOKÁ, jež je navržen podle aktuálních trendů moderního bydlení s důrazem na kvalitu a dlouhodobou udržitelnost budov.

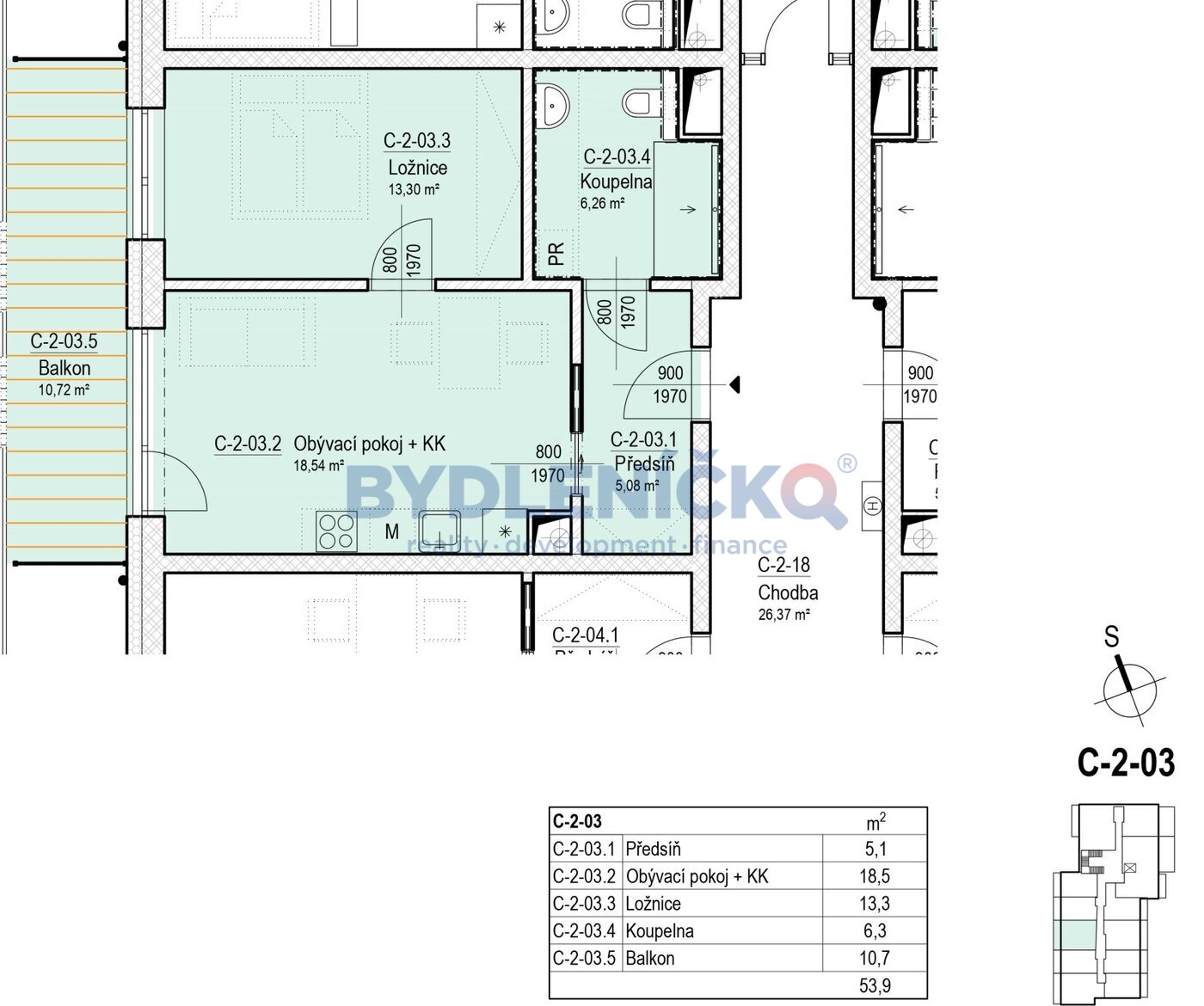
Jedná se o praktický byt o dispozici 2+kk nacházející se ve 2. NP budovy C. Stejně tak jako všechny ostatní bytové jednotky je i tato koncipována jako bezbariérová. Její podlahová plocha činí 43,2 m2 a disponuje balkónem o výměře 10,7 m2. Orientace bytu je na západ.

Bytovou jednotku tvoří: předsíň o výměře 5,1 m2, obývací pokoj s kuchyňským koutem o velikosti 18,5m2, ložnice o velikosti 13,3 m2 a koupelna s toaletou o výměře 6,3 m2. Dle přání lze dokoupit samostatnou sklepní kóji na patře (2,9 – 4,4 m2).

Budova C je vybavena prostorným výtahem.

Byt bude předán zkolaudovaný, včetně sanitárního vybavení, obkladů a finálního pokrytí podlah.

Součástí celého resortu jsou parkovací stání, která lze dle přání dokoupit.
Obyvatelé resortu mohou dle potřeby také využívat společné prostory jednotlivých budov (tj. např. společenské místnosti, prostory pro zdravotnické a sociální služby, sklady pro odpad apod.)

Družstevní vlastnictví představuje nejdostupnější řešení pořízení vlastního bydlení bez hypotéky a dokládání příjmů. Při nákupu této bytové jednotky stačí postupně složit pouze 30% ceny bytu, tj. 1 602 150,– Kč, a zbytek doplácet měsíčními splátkami družstvu. V tomto případě činí měsíční splátka anuity 19 343,– Kč.


Výhodou projektu RESORT HLUBOKÁ je ověřený formát družstevního bydlení představující cenově dostupné řešení pro širokou veřejnost a nabízející také skvělou investici do budoucnosti.

Pro podrobné informace nás prosím kontaktujte, rádi si s Vámi domluvíme osobní schůzku. Jsme tu pro Vás.

Parametry nemovitosti

Operace:
Prodej
Číslo nemovitosti:
24006-3 BYDL
Operace:
Prodej
Typ nemovitosti:
Byt
Typ bytu:
2+kk
Podlaží:
2. podlaží z 4 podlaží celkem
Adresa:
Hluboká nad Vltavou 1
Vodovod:
Dálkový vodovod
Terasa:
Ne
Balkon:
Ano
Lodžie:
Ne
Zahrada:
Ne
Výtah:
Ano
Sklep:
Ano
Typ certifikátu:
vyhláška č. 264/2020 Sb
Výbava:
Sprchový kout, zděnné jádro, balkon, sklep, telefonní přípojka, výtah, vedení pc sítě, veřejné parkování, vana
Vydaný certifikát:
B - Velmi úsporná
Konstrukce:
Cihlová
Stav objektu:
Ve výstavbě
Umístění objektu:
Klidná část obce
Plocha podlahová:
43 m2
Plocha balkonu:
11 m2
Vlastnictví:
Družstevní
Dopravní dostupnost:
MHD, Příměstská doprava, Silnice, Dálnice, I. třída, II. třída, Vlak, Letiště
Elektřina u nemovitosti:
230v
Kanalizace:
Veřejná kanalizace
Balkon:
Ano
Zpět na Přehled